亲爱的读者,你是否曾对那些庞大的发电厂充满好奇?那些轰鸣的机器,那些错综复杂的线路,它们是如何将无尽的能量转化为我们日常所需的电力呢?今天,就让我们一起揭开发电厂电气部分的神秘面纱,通过一系列精心挑选的视频,带你领略这个领域的奇妙世界。
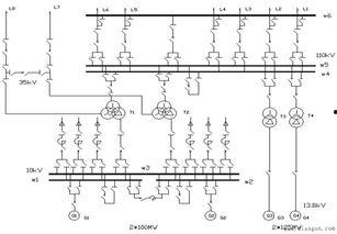
一、发电厂电气部分概述

发电厂是现代社会不可或缺的能源基地,而电气部分则是其核心所在。电气部分主要包括发电机、变压器、配电装置等设备,它们共同构成了发电厂的心脏。下面,我们就来一一了解这些关键设备。
二、发电机:能量转换的魔术师

发电机是发电厂的核心设备,它将水力、风力、核能等不同形式的能量转化为电能。下面,让我们通过一段视频,看看发电机是如何工作的。
[视频:发电机工作原理演示]
视频中,我们可以看到,发电机内部有一个旋转的转子,当转子旋转时,它会产生磁场,进而产生电流。这个过程就像是一个魔术师,将各种形式的能量巧妙地转化为电能。
三、变压器:电压的魔术师

变压器是连接发电机和配电装置的关键设备,它负责将发电机产生的电压升高或降低,以满足不同用电需求。下面,让我们通过一段视频,了解变压器的工作原理。
[视频:变压器工作原理演示]
视频中,我们可以看到,变压器由一个铁芯和两个线圈组成。当高压线圈通电时,会在铁芯中产生磁场,进而影响低压线圈,从而实现电压的升高或降低。这个过程就像是一个电压的魔术师,将电压玩转于股掌之间。
四、配电装置:电力的守护者
配电装置是发电厂电气部分的重要组成部分,它负责将电能输送到各个用电区域。下面,让我们通过一段视频,了解配电装置的工作原理。
[视频:配电装置工作原理演示]
视频中,我们可以看到,配电装置由多个开关、断路器等设备组成。这些设备共同协作,确保电能的安全、稳定输送。配电装置就像是一位守护者,时刻守护着电力的安全。
五、发电厂电气部分的安全与维护
发电厂电气部分的安全与维护至关重要,它直接关系到电力系统的稳定运行。下面,让我们通过一段视频,了解发电厂电气部分的安全与维护。
[视频:发电厂电气部分安全与维护演示]
视频中,我们可以看到,发电厂电气部分的安全与维护主要包括以下几个方面:
1. 定期检查设备,确保设备正常运行;
2. 加强人员培训,提高安全意识;
3. 制定应急预案,应对突发事件。
通过这些措施,发电厂电气部分的安全与维护得到了有力保障。
来说,发电厂电气部分是一个充满神奇与奥秘的世界。通过这些视频,我们不仅了解了发电厂电气部分的工作原理,还感受到了电力工程师们的智慧与辛勤付出。希望这篇文章能让你对发电厂电气部分有更深入的了解,同时也为你的生活增添一份电力知识。
